Nowe mieszkania w Tomaszowie Mazowieckim - ul. Rolna
Zobacz jakie mieszkania aktualnie znajdują się w naszej ofercie, wybierz idealne mieszkanie dla siebie i wypełnij formularz kontaktowy!
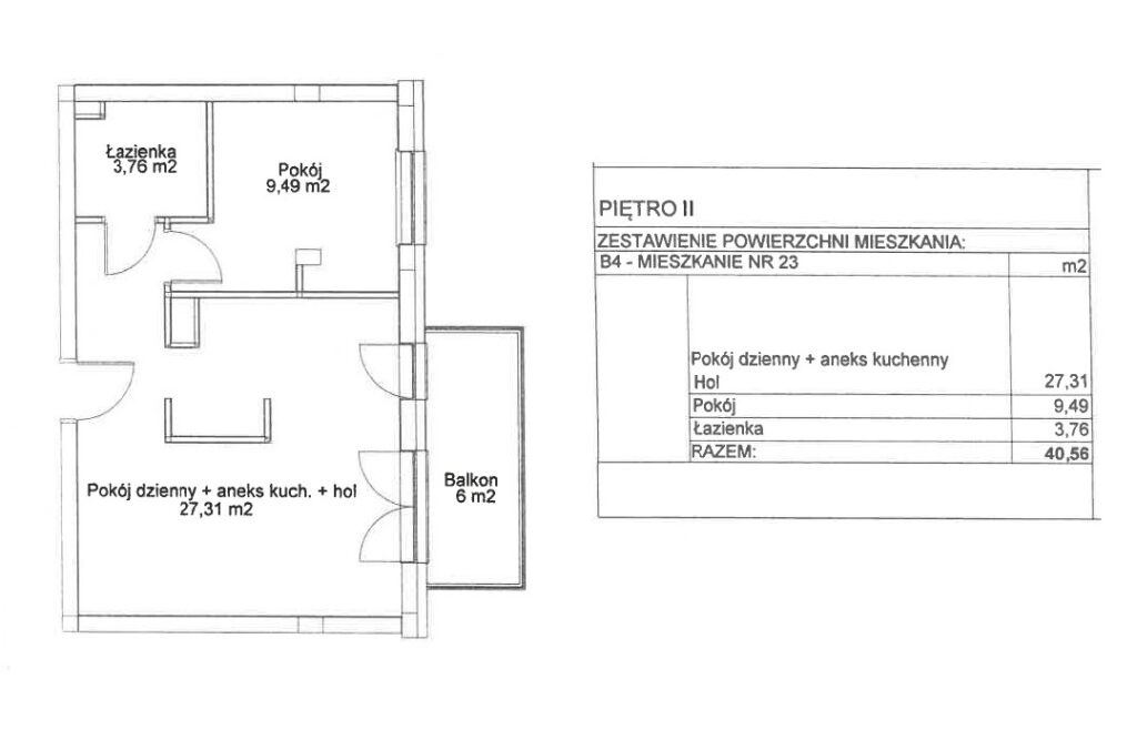
Mieszkanie 40 m²
Bez podatku PCC • Funkcjonalny układ • Spokojna lokalizacja
Funkcjonalne mieszkania o powierzchni 40 m² zlokalizowane na spokojnym, ogrodzonym osiedlu przy ul. Rolnej w Tomaszowie Mazowieckim.
Układ mieszkania obejmuje:
- salon z aneksem kuchennym,
- sypialnię,
- łazienkę z WC,
- słoneczny balkon o pow. 6 m².
Dostępne są lokale na 1., 2. i 3. piętrze.
Najważniejsze atuty:
- spokojna lokalizacja z dobrym dojazdem do centrum,
- standard deweloperski – możliwość własnej aranżacji,
- plac zabaw na terenie osiedla,
- opcja zakupu miejsca w garażu podziemnym (również z boxem).
Idealne jako pierwsze mieszkanie, dla pary lub pod wynajem.
Cena: 360 000 zł brutto
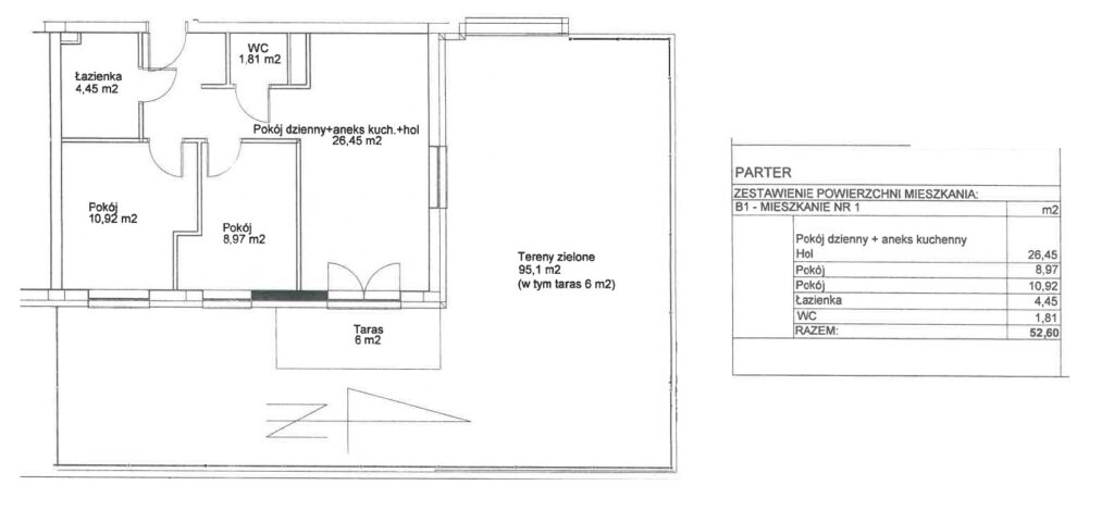
Mieszkanie 53 m² z ogródkiem
Brak podatku PCC • Ogród 95 m² • Dwie łazienki
Na sprzedaż komfortowe mieszkanie o powierzchni 50 m² z prywatnym ogrodem, zlokalizowane na zamkniętym osiedlu przy ul. Rolnej w Tomaszowie Mazowieckim.
Atuty nieruchomości:
- ogród o powierzchni 95 m² – idealny na relaks, spotkania lub przestrzeń dla dzieci
- taras 4,5 m² z bezpośrednim wyjściem na zieleń
- dwie łazienki, co podnosi komfort codziennego użytkowania
- możliwość zakupu miejsca postojowego w garażu podziemnym
- zamknięte osiedle z placem zabaw
- spokojna, cicha okolica z szybkim dojazdem do centrum – 3 minuty autem
Mieszkanie jest w stanie deweloperskim, gotowe do urządzenia według własnego projektu i stylu.
To idealna propozycja dla osób ceniących prywatność, komfort i własną przestrzeń na świeżym powietrzu.
Cena: 500 000 zł brutto
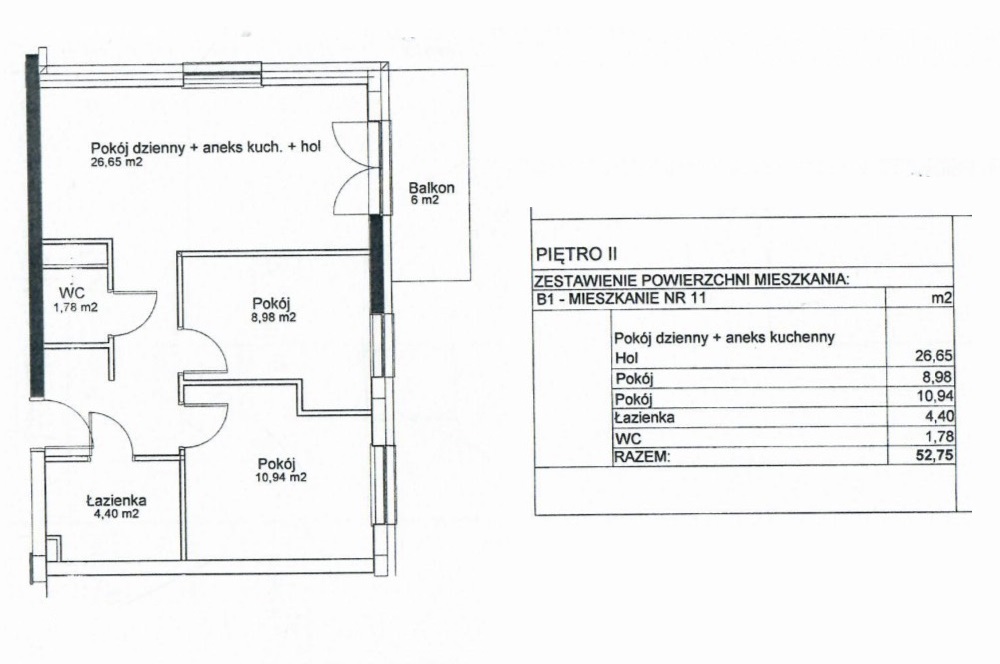
Mieszkanie 53 m²
Brak podatku PCC • Balkon 4,5 m² • Zamknięte osiedle
Funkcjonalne mieszkania o powierzchni 53 m² zostały zaprojektowane tak, aby zapewnić komfort na co dzień i wygodny podział przestrzeni.
W skład lokalu wchodzi:
- salon z aneksem kuchennym,
- dwa osobne pokoje,
- łazienka z WC,
- balkon o powierzchni 4,5 m².
Osiedle jest ogrodzone i bezpieczne, a dla mieszkańców dostępny jest plac zabaw – idealny dla rodzin z dziećmi.
Dostępność: Lokale dostępne są na 1., 2. i 3. piętrze, co pozwala dopasować mieszkanie do preferencji.
Dodatkowe atuty:
- spokojna lokalizacja z dobrym dojazdem do centrum,
- standard deweloperski – możliwość urządzenia wnętrza według własnego gustu,
- opcja zakupu miejsca postojowego w garażu podziemnym (również z boxem).
Idealne rozwiązanie dla rodzin, par lub osób szukających przestrzeni z balkonem w spokojnym otoczeniu.
Cena: 450 000 zł brutto
Mieszkanie 53 m²
Brak podatku PCC • Dwie łazienki
Na sprzedaż komfortowe mieszkanie o powierzchni 52,5 m², położone na nowoczesnym, zamkniętym osiedlu przy ul. Rolnej w Tomaszowie Mazowieckim. Idealne dla rodzin, par oraz osób szukających funkcjonalnego lokum blisko centrum miasta.
Atuty nieruchomości:
- przestronny salon z aneksem kuchennym – serce mieszkania,
- dwa niezależne pokoje, które można przeznaczyć na sypialnie, gabinet lub pokój dla dziecka,
- dwie łazienki, co znacznie zwiększa komfort codziennego użytkowania,
- balkon 6 m², idealny na poranną kawę lub wieczorny relaks,
- możliwość zakupu miejsca postojowego w garażu podziemnym (również z boxem),
- zamknięte, bezpieczne osiedle z placem zabaw tylko dla mieszkańców,
- spokojna okolica i świetna lokalizacja – do centrum Tomaszowa tylko 3 minuty autem.
Mieszkanie w stanie deweloperskim, gotowe do własnej aranżacji zgodnie z Twoim gustem.
Cena: 430 000 zł brutto
Lokalizacja
ul. Rolna, 97-200 Tomaszów Mazowiecki
Numer telefonu
+48 504 247 134
Adres e-mail
kontakt@natura-investment.pl
Inwestor
K&K ECOPLUS Sp. z o.o. ul. Wąwalska 28 97-200 Tomaszów Mazowiecki NIP: 7732491828
